Вилла 2 br от застройщика в районе Букит, Бали
- от €124,621
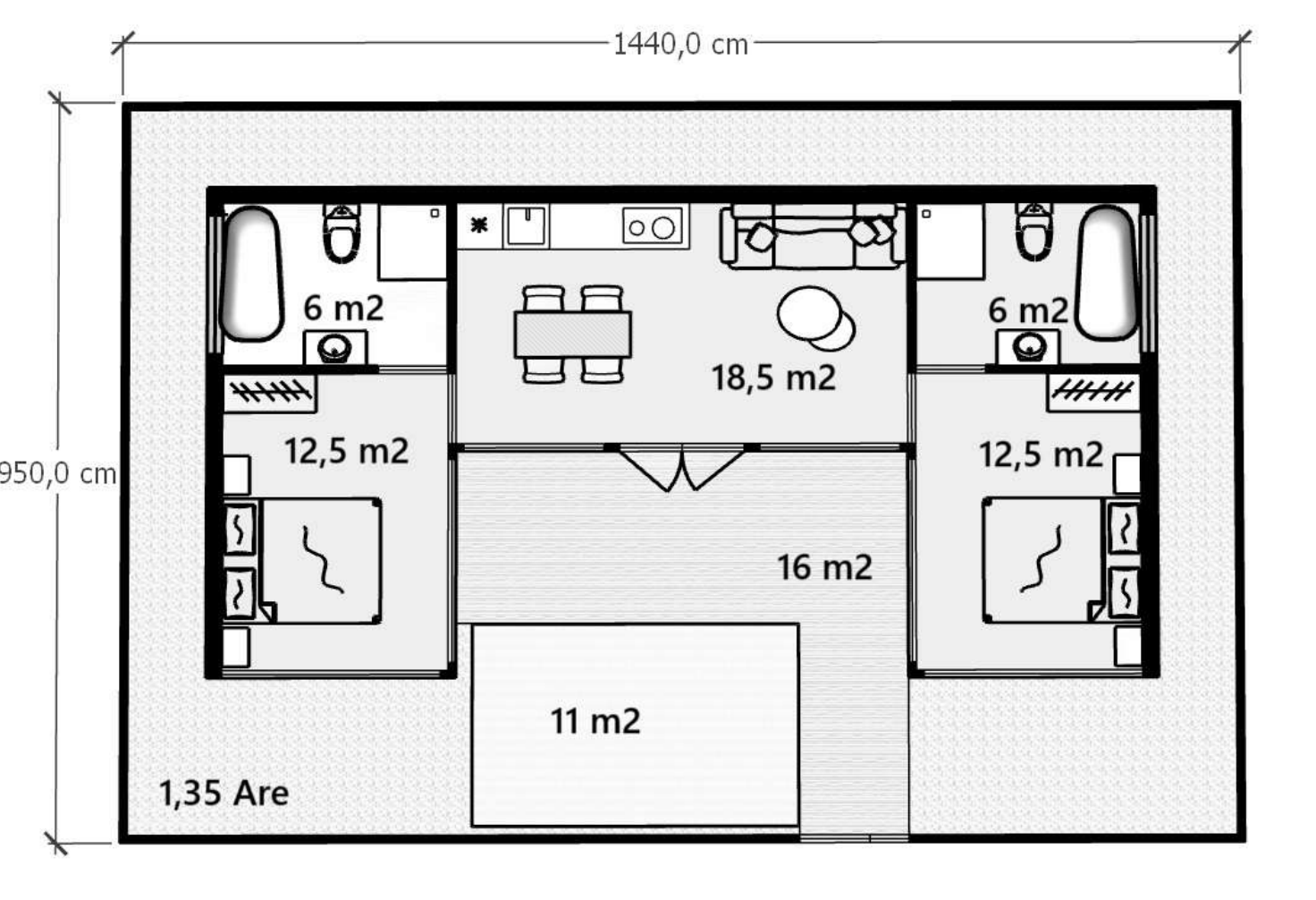
Обзор
- Вилла
- 2
- 65 кв.м
- 2
- Q4 2026
Описание
В продаже вилла 2 br от застройщика в районе Букит, Бали.
Формат: кухня-гостинная и 2 спальня.
Площадь: 65 кв.м.
Базовая комплектация: полная комплектация: мебель, техника, текстиль и аксессуары включены.
Инфраструктура комплекса: круглосуточная ресепшн, консьерж-сервис, аренда скутеров, коворкинг, тренажёрный зал, йога-центр, джус-бар, итальянское кафе.
О районе:
Комплекс распологается на полуострове Букит, который со всех сторон омывается океаном. Рядом большие инфраструктурные проэкты и отельные сети. Также в пешей доступности от комплекса топ-5 пляжей Бали: Грин Бол, Баланган, Дримлэнд и Пандава. Есть все, что необходимо: колоритные пляжные кафе и шикарные рестораны, модные клубы, spa-салоны и серфинг-центры.











